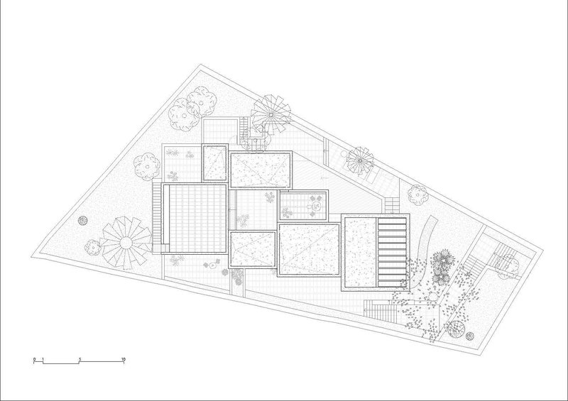
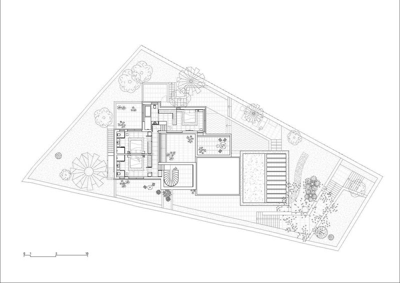
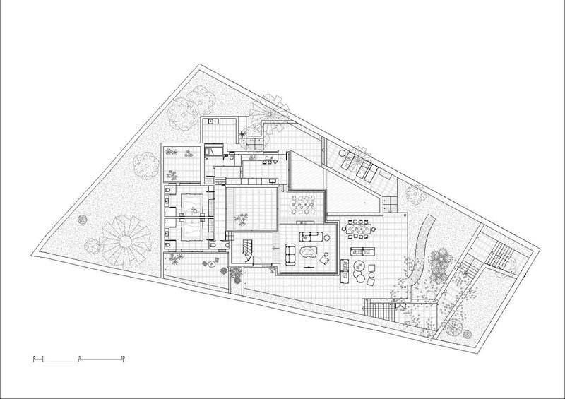
Em meio a um terreno trapezoidal que se estende como uma tela em branco, ergue-se a majestosa Bundle House. Esta villa de 350 metros quadrados, situada no coração da costa espanhola, transcende as restrições do espaço para oferecer uma experiência visual e sensorial singular, abraçando o cenário deslumbrante do Mar Mediterrâneo. Os arquitetos enfrentaram o desafio inicial de uma orientação oblíqua em relação ao mar, transformando-o em uma oportunidade criativa. Cantos estrategicamente abertos revelam vistas panorâmicas do pôr do sol, convertendo dificuldades topográficas em momentos de pura contemplação. O design harmonioso subdivide o extenso programa em nove volumes retangulares de alturas variadas, que descem a encosta com a graça de uma coreografia arquitetônica, envolvendo árvores majestosas e criando uma integração poética entre natureza e construção. Os recuos escalonados seguem a forma trapezoidal do terreno, concebendo nichos íntimos de privacidade no jardim, onde o interior e o exterior se fundem em um só. No coração da residência, um pátio central de seis por seis metros inunda os interiores com luz natural, refletindo nos tetos de dupla altura das áreas de convivência ao redor. Este pátio, mobiliado com um sofá embutido e pufes de descanso, transforma-se em um espaço de vida versátil, oferecendo sombra e ventilação cruzada no verão, e abrigando-se dos ventos nos meses mais frios. A concepção inovadora permite uma integração contínua entre o alpendre, a sala de estar e o pátio, criando um espaço expansivo através do deslizamento de janelas de canto em altura total. Estas aberturas, posicionadas com precisão, parecem desafiar as leis da gravidade, com suas bordas em balanço se estendendo audaciosamente para oferecer vistas desimpedidas do mar, parte da experiência interior. Aproveitando a geometria de dupla altura do pátio, induzem um efeito chaminé natural, atraindo ar fresco e resfriando eficazmente o interior. Adicionalmente, volumes altos com aberturas posicionadas em alturas baixas promovem uma ventilação natural, à medida que o ar quente sobe, contribuindo para um ambiente interno confortável. A expressão arquitetônica é definida por vigas de concreto expostas que atravessam entre paredes de alvenaria robustas e colunas metálicas delgadas, formando uma base contínua de fachada envidraçada que conecta harmoniosamente espaços internos e externos. A geometria da villa é modulada conforme sua técnica construtiva, com tetos em abóbada de cerâmica e blocos de concreto criando uma linguagem de design coesa. A fachada de cor clara e arenosa harmoniza-se com o entorno, mantendo o interior fresco. É complementada por pavimentos de arenito local, que refletem o padrão do teto de vigas e abóbadas. No interior, uma paleta de cores suaves e terrosas e materiais naturais criam uma atmosfera convidativa, com arenito, cerâmica, granito e madeira adicionando riqueza à experiência tátil e visual. Em contraste com a fachada minimalista, o interior exibe uma abundância de texturas, padrões intrincados e métodos de construção abertamente exibidos. Ao entrar no hall de dupla altura, é recebido por uma abundância de luz natural, enquanto uma escada metálica escultural em espiral conecta os dois andares. Os espaços do térreo fluem sem esforço em torno do pátio, enquanto os corredores do andar superior se transformam em amplos salões abertos, visualmente conectados a outras áreas da casa. Os quartos com suíte exalam amplitude, apresentando lavabos abertos, grandes espelhos e cabines de vidro canelado para o WC e chuveiro. Os armários são projetados como gabinetes abertos com cortinas, adicionando suavidade ao design interior e otimizando a utilização do espaço. À medida que a piscina se funde perfeitamente com a arquitetura, serve como um elemento de design integral que circunda a área de jantar, criando um efeito visual cativante, semelhante a jantar no meio do abraço tranquilo da água. Uma escada peculiar e escalonada leva ao terraço no telhado, oferecendo vistas deslumbrantes em direção à Ilha de Mallorca, completando esta obra-prima arquitetônica com um toque de capricho e charme.