O Santuário Digital de Malachowsky: Um Encontro entre Dados e Luz

Onde inovação e ética se entrelaçam em um balé arquitetônico de vanguarda

University of Florida - Malachowsky Hall for Data Science and Information Technology / Bohlin Cywinksi Jackson - Exterior Photography

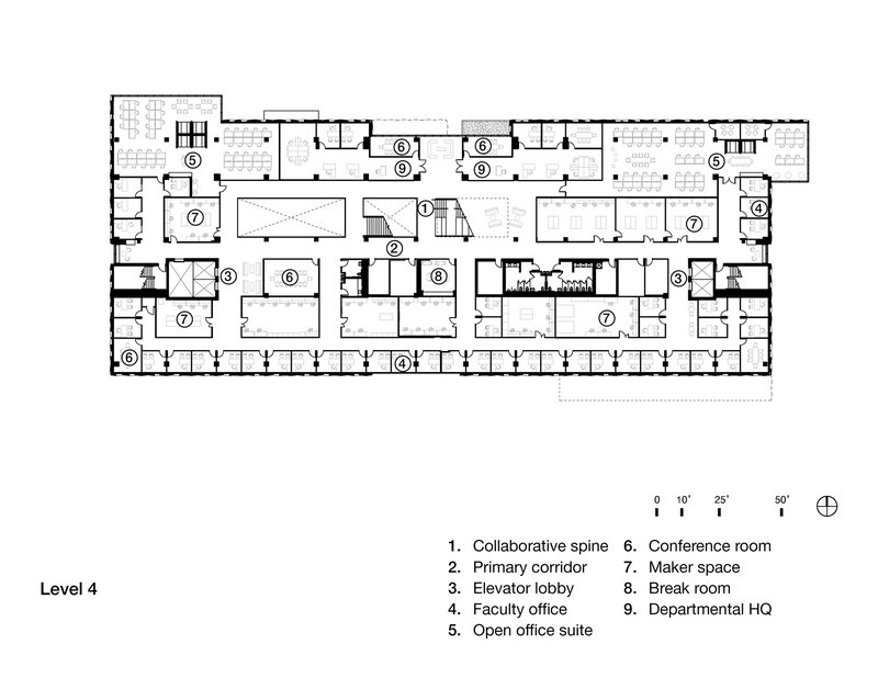
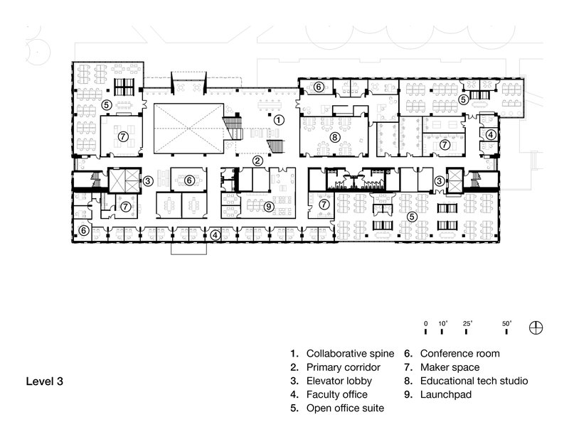
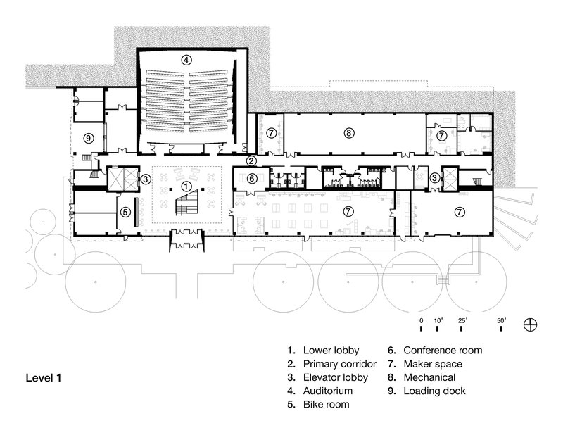
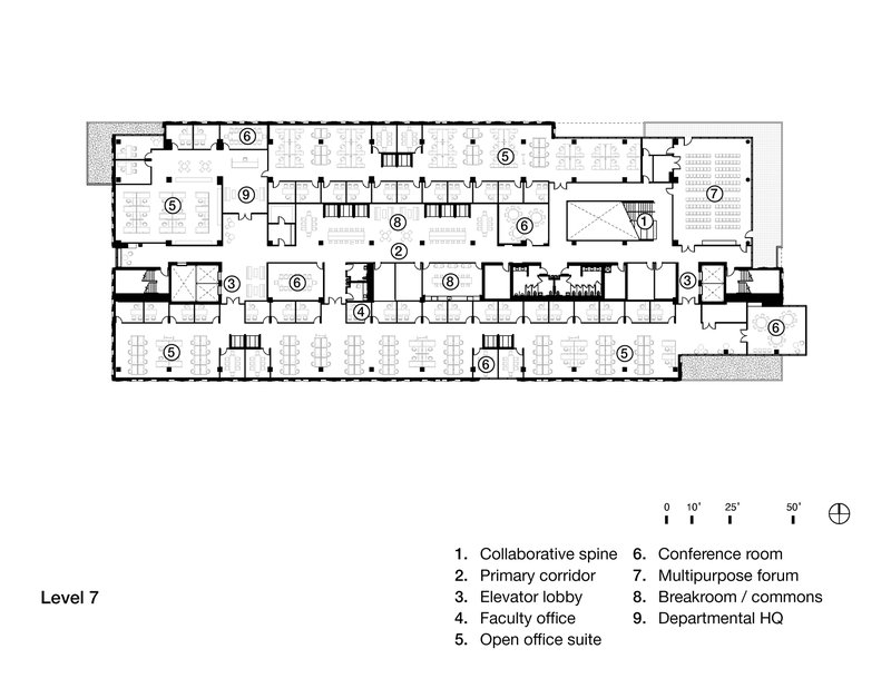
Imerso em uma paisagem acadêmica vibrante, o Malachowsky Hall para Ciência de Dados e Tecnologia da Informação emerge como um farol de inovação no coração da Universidade da Flórida. Este espaço, projetado pela renomada Bohlin Cywinksi Jackson, não é apenas um edifício; é uma ode à interseção entre tecnologia e humanidade, onde cada linha arquitetônica e cada sombra lançada pela luz natural foram meticulosamente concebidas para inspirar e fomentar a colaboração interdisciplinar.

University of Florida - Malachowsky Hall for Data Science and Information Technology / Bohlin Cywinksi Jackson - Exterior Photography
University of Florida - Malachowsky Hall for Data Science and Information Technology / Bohlin Cywinksi Jackson - Exterior Photography

O Malachowsky Hall é um exemplo soberbo de como a arquitetura pode ser tanto funcional quanto poética. Localizado estrategicamente próximo ao movimentado Reitz Student Union, o edifício convida aqueles que passam a explorar seu interior luminoso e acolhedor. A certificação LEED Platinum do projeto ressalta o compromisso com a sustentabilidade, sem comprometer a estética ou a funcionalidade. Cada material escolhido, cada textura aplicada, reflete uma dedicação à excelência duradoura, criando uma experiência sensorial que vai além do visual.

University of Florida - Malachowsky Hall for Data Science and Information Technology / Bohlin Cywinksi Jackson - Exterior Photography
University of Florida - Malachowsky Hall for Data Science and Information Technology / Bohlin Cywinksi Jackson - Exterior Photography

Ao adentrar o edifício, somos recebidos por volumes generosos de espaço que se entrelaçam harmoniosamente, permitindo que a luz natural flua livremente através de amplas superfícies envidraçadas. Este jogo de luz e sombra, de transparência e opacidade, não é meramente decorativo; ele simboliza o próprio ethos do local: a clareza e a abertura que a ciência de dados e a inteligência artificial trazem para o futuro.

University of Florida - Malachowsky Hall for Data Science and Information Technology / Bohlin Cywinksi Jackson - Interior Photography, Lighting, Glass, Chair
University of Florida - Malachowsky Hall for Data Science and Information Technology / Bohlin Cywinksi Jackson - Interior Photography, Lighting, Glass, Chair

Dentro dessas paredes, mentes brilhantes do Herbert Wertheim College of Engineering, do College of Medicine e do College of Pharmacy convergem em uma dança intelectual. Eles se dedicam a repensar a saúde, a engenharia da próxima geração de robótica e veículos não tripulados, e os sistemas de comunicação que moldarão nosso amanhã. A responsabilidade de garantir que a inteligência artificial seja utilizada de maneira ética e equitativa é uma missão que ressoa em cada canto deste espaço.

University of Florida - Malachowsky Hall for Data Science and Information Technology / Bohlin Cywinksi Jackson - Interior Photography, Glass
University of Florida - Malachowsky Hall for Data Science and Information Technology / Bohlin Cywinksi Jackson - Interior Photography, Glass

A composição material do Malachowsky Hall é uma sinfonia de elementos naturais e tecnológicos. A madeira, o vidro e o aço se combinam em uma harmonia visual que evoca tanto a solidez quanto a transparência, refletindo a dualidade do conhecimento humano e a precisão das máquinas. A textura da madeira oferece calor, enquanto o brilho do vidro e o rigor do aço falam de modernidade e avanço.

University of Florida - Malachowsky Hall for Data Science and Information Technology / Bohlin Cywinksi Jackson - Exterior Photography
University of Florida - Malachowsky Hall for Data Science and Information Technology / Bohlin Cywinksi Jackson - Exterior Photography

Assim, o Malachowsky Hall não é apenas um local de aprendizado, mas um palco onde o futuro é constantemente reimaginado e redefinido. Ele não apenas abriga programas acadêmicos focados em dados e inteligência artificial, mas também promove uma cultura de inclusão e exploração, onde cada estudante e pesquisador sente-se parte de uma comunidade maior.

University of Florida - Malachowsky Hall for Data Science and Information Technology / Bohlin Cywinksi Jackson - Exterior Photography
University of Florida - Malachowsky Hall for Data Science and Information Technology / Bohlin Cywinksi Jackson - Exterior Photography

Com sua localização proeminente e seu design inovador, o Malachowsky Hall para Ciência de Dados e Tecnologia da Informação é um testemunho do poder transformador da arquitetura. Este edifício não apenas abriga mentes brilhantes; ele inspira, educa e eleva todos aqueles que têm o privilégio de cruzar suas portas.

University of Florida - Malachowsky Hall for Data Science and Information Technology / Bohlin Cywinksi Jackson - Interior Photography, Glass, Stairs
University of Florida - Malachowsky Hall for Data Science and Information Technology / Bohlin Cywinksi Jackson - Interior Photography, Glass, Stairs

Newsletter

Receba nossa edição trimestral sobre arquitetura contemporânea.