HAVEN House / ZERO STUDIO

HAVEN House / ZERO STUDIO - Image 1 of 29

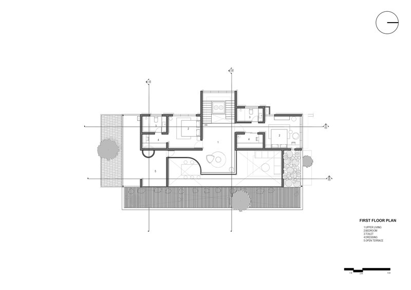
A descrição textual fornecida pelos arquitetos revela que a HAVEN House é uma expressão característica da filosofia de design do escritório, marcada pela simplicidade e modéstia no uso de materiais, texturas, acabamentos e mobiliário. Posicionada como um volume predominantemente linear em um terreno elevado, a forma evita dominar seu contexto. Em vez de explorar a vantagem de altura do local em relação ao terreno circundante, a arquitetura integra uma parede de laterita que funciona tanto como muro de contenção quanto como a pele principal do edifício ao longo da elevação leste. Esta parede se estende pelo volume maior que abriga as áreas comuns. A HAVEN House, portanto, não só respeita o ambiente ao seu redor, mas também dialoga com ele de maneira harmoniosa, criando um espaço que promove a convivência e a introspecção, sem perder de vista a estética contemporânea e funcional.

Newsletter

Receba nossa edição trimestral sobre arquitetura contemporânea.